2Fサービス店舗|入居テナント先行募集!
- TYPE
- SERVICE SHOP
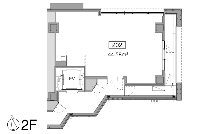
- 区画
- 202
- 面積
- 44.58㎡
- 賃料
- 460,000円 (税込506,000円)
- 天井高
- 3,195mm
- 内装仕上げ
- 床:躯体表し / 壁:白塗装 / 天井:デッキプレート素地
- 設備
- 電灯:単相3線12KvA 100AF/60AT
動力:三相3線16KvA 100AF/100AT
照明:ライティングレール(照明器具別途)
給水:20A / 排水:100A(ミニキッチン有/予備配管完備)
空調・換気:天カセットエアコン1台 - 入居可能日
- 8月予定(C工事開始日:相談可 )
- 情報更新日
- 2026-02-06
※本サイトに掲載されている募集情報は、状況によりお申込みや審査中の区画も含まれるため、ご案内できない可能性がございます。詳細はお問合せください。
募集要項
- 種別
- サービス店舗(飲食・物販不可)
- 契約種類
- 定期建物賃貸借契約
- 契約期間
- 3年間
- 再契約
- 相談可
- 再契約料
- 新賃料の1.1ヶ月
- 保証金
- 賃料の4.1ヶ月分~(審査内容により積み増しの可能性あり)
- 保証金償却
- 保証金の内、賃料の1.1ヶ月分
- 保証会社
- 必須
- 保証会社委託料
- 税込月額固定費の1ヶ月分(非課税)
- 更新保証料
- 50,000円/1年毎(非課税)
- 火災保険
- 別途
- 契約事務手数料
- 賃料の1.1ヶ月分
- 期間内解約
- 3ヶ月前予告
- 取引態様
- 貸主
- 社名表示作成料
- 入居時・変更時 5,000円(税込5,500円)
- その他別途費用
- 水道・電気・ガス・インターネット・ごみ処理費
- 備考
- 8月開業に合わせてオープン出来るよう先行して内装工事が相談可能です。
WHAT IS “ECLINE”
ABOUT
"間が生む、ゆとりを楽しむ"
間(あわい)とは、境界や中間の状態を意味する
交わりや曖昧な領域、余白、間(ま)のこと
都心に近接しながらも渋谷でも中目黒でも無い、
喧噪から離れて一息つける
衣・食・住・働が心地よく交わる中で、人や仕事、地域を明確に区切らず、
ONとOFFが共存・交差できる池尻大橋だからこそ持てる
「ゆとり・つながり」をここから
DETAIL
- TYPE
- OFFICE・SHOP
- NUMBER
- 全29区画(予定)
- SIZE
- 20.57㎡〜56.01㎡(予定)
- WARD
- 目黒区
- STATION
- 「池尻大橋駅」 徒歩7分
「神泉駅」 徒歩13分 - SCALE
- 鉄骨造 地上10階建
- COMPLETION
- 2026年5月(予定)
PUBLIC & SERVICE
ACCESS
- ADDRESS
- 〒153-0044 東京都目黒区大橋1-1-2
- ACCESS
- 東急電鉄田園都市線「池尻大橋駅」徒歩7分
京王電鉄井の頭線「神泉駅」徒歩13分
RECOMMEND
その他のオススメ物件
<OUTLINE>
NAME: ECLINE / ADDRESS: 1-1-2, Ohashi, Meguro-ku, Tokyo / ACCESS: “Ikejiri-ōhashi station”(Keiō New Line) 7 min walk, "Shinsen station" (Keio Inokashira Line) 13 min walk / PURPOSE: Office, Shop / COMPLETION YEAR: May 2026(Schedule) / Creditor: REALGATE INC.
<PLAN>
OFFICE 20.57㎡ to 56.01㎡, SHOP 40.30㎡ / 50.58㎡
<CONTACT>
More information or questions, please contact us by email: [email protected]
