好きな条件で検索する
TYPE
タイプ
AREA
立地
SIZE
面積
PRICE
賃料

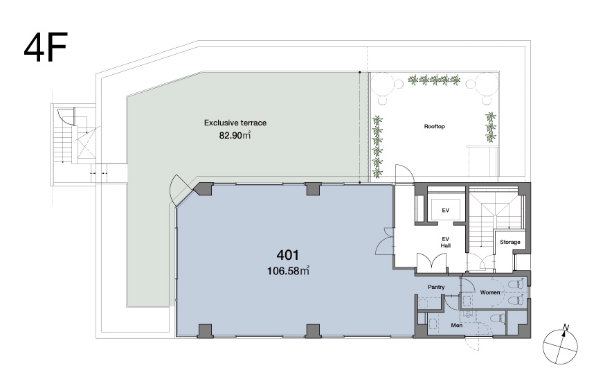
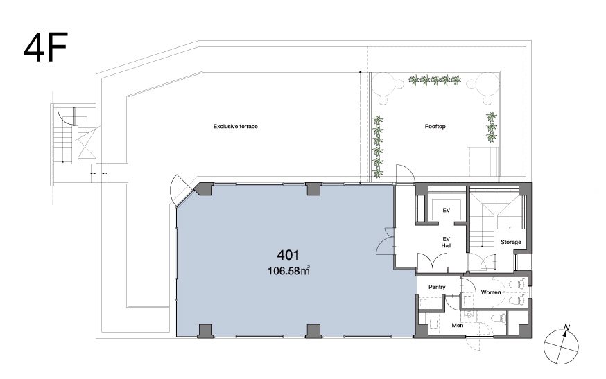
unframe|401[専用バルコニー(82.90㎡)付き]

間取り図
unframe 屋上景色
unframe 緑道
間取り図
unframe 屋上景色
unframe 緑道
TYPE
OFFICE
区画
401[専用バルコニー(82.90㎡)付き]
面積
106.58㎡
賃料
950,000円 (税込1,045,000円)
入居可能日
2026年5月中旬(予定)
情報更新日
2026-01-29

※本サイトに掲載されている募集情報は、状況によりお申込みや審査中の区画も含まれるため、ご案内できない可能性がございます。詳細はお問合せください。

募集要項
種別
事務所
契約種類
定期建物賃貸借契約
契約期間
2年間
再契約
相談可
再契約料
新賃料の1.1ヶ月
保証金
賃料の3.1ヶ月分
保証金償却
保証金の内、賃料の1.1ヶ月分
保証会社
必須
保証会社委託料
税込月額固定費の1ヶ月分(非課税)
更新保証料
50,000円/1年毎(非課税)
契約事務手数料
賃料の1.1ヶ月分
期間内解約
2ヶ月前予告
取引態様
貸主
社名表示作成料
入居時・変更時 5,000円(税込5,500円)
実費精算
水光熱費・ゴミ処理費

FOR RENT

「unframe」の最新の募集状況や、今後の空き予定についてはコンタクトフォームよりお問い合わせください。
NOW LOADING

WHAT IS “unframe”

SHOP Image Pers.
SHOP Image Pers.
SHOP Image Pers.
SHOP Image Pers.
Green Road
Green Road
Green Road
Green Road
Stairs
Stairs

ABOUT

unframe — Unframe Creativity

街にひらいたカフェ&ギャラリーと、
創作に没入できるアトリエライクなオフィスが同居する「unframe」。

コーヒーで一息つきながら感性を整え、
つくる人と街の視線が自然に交わる。

枠にとらわれない空間が、
発想の輪郭をほどき、
そのアイデアは形になり、
体験となって
外へ広がっていく。

街の感性をつなぐ場所。

DETAIL

TYPE
SHOP・OFFICE
NUMBER
全22区画(予定)
SIZE
16.07㎡~135.91㎡
WARD
世田谷区
STATION
「池尻大橋駅」 徒歩7分
SCALE
鉄筋コンクリート造 陸屋根地下1階付4階建
COMPLETION
2026年5月(予定)

PUBLIC & SERVICE

ACCESS

ADDRESS
〒154-0001 東京都世田谷区池尻3-11-6
ACCESS
東急田園都市線「池尻大橋駅」徒歩7分
Google MAPで見る →

RECOMMEND
その他のオススメ物件

<OUTLINE>
NAME: unframe / ADDRESS: 3-11-6, Ikejiri, Setagaya-ku, Tokyo / ACCESS: “Ikejiri-ōhashi station”(Keiō New Line) 7 min walk / PURPOSE: Shop , Office / COMPLETION YEAR: May 2026(Schedule) / Creditor: REALGATE INC.

<PLAN>
16.07㎡ to 135.91㎡

<CONTACT>
More information or questions, please contact us by email: [email protected]