- TYPE
- SHOW ROOM・OFFICE
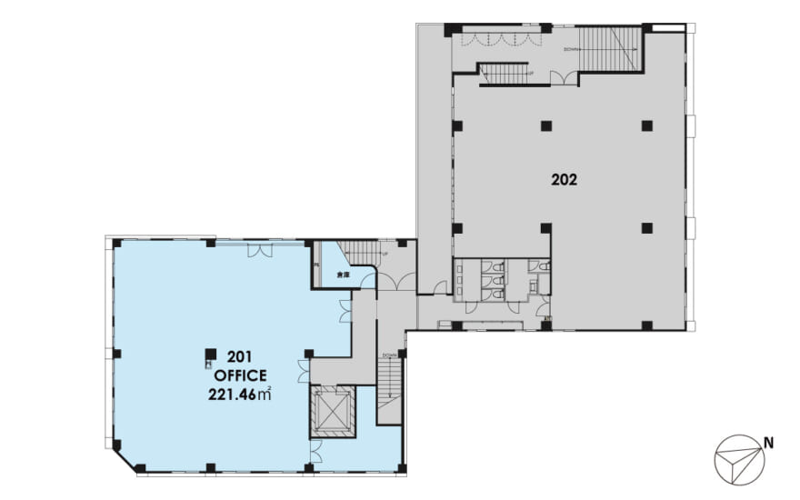
- 区画
- 201(天高:2700mm)
- 面積
- 221.46㎡
- 賃料
- 1,800,000円 (税込1,980,000円)
- 内装仕上げ
- 床:フローリング、壁:塗装、天井:躯体現し
- 設備
- エアコン、ライティングレール、ブラインド、インターネット用空配管、給排水設備、電気容量(電灯)75A /(動力)100A
- 入居可能日
- 8月下旬
- 情報更新日
- 2026-04-27
※本サイトに掲載されている募集情報は、状況によりお申込みや審査中の区画も含まれるため、ご案内できない可能性がございます。詳細はお問合せください。
- 種別
- 事務所
- 契約種類
- 定期建物賃貸借契約
- 契約期間
- 3年間
- 再契約
- 相談可
- 再契約料
- 新賃料の1.1ヶ月分
- 保証金
- 5.1ヶ月
- 保証金償却
- 保証金の内、賃料(共益費含む)の1.1ヶ月分
- 原状回復費
- 退去時精算
- 保証会社
- 必須
- 保証会社委託料
- 税込月額固定費の1ヶ月分(非課税)
- 更新保証料
- 1年毎 50,000円(非課税)
- 火災保険
- 要加入
- 契約事務手数料
- 賃料の1.1ヶ月分
- 期間内解約
- 5ヶ月前予告
- 取引態様
- 貸主
- 社名表示作成料
- 入居時・変更時:5,000円(税込5,500円)
- その他
- 別途費用:水光熱費・ゴミ処理費用・内装監理費あり
- キャンペーン適用時
- ※途中解約の場合、キャンペーン分の違約金が発生します。
WHAT IS “THE WORKS”
ABOUT
ALLDAY OFFICE
2014年11月にオープンした「THE WORKS(ザワークス)」。1969年竣工の5階建て倉庫兼事務所ビルをショップ&オフィスにリノベーション。古びた倉庫の雰囲気を活かした統一感のある空間は、NYのリノベーションホテルを彷彿とさせます。
1Fはレストランとコーヒーバー、2F〜5Fはオフィスフロアを内包。コンクリートの躯体を露わにしたヴィンテージ感が漂うシンプルな空間を自由に創り込み、オリジナルでクリエイティブなオフィスを実現して頂けます。また、気の合う仲間とビジネス・時間・場所を共有できるようにスモールオフィスに3法人まで同居が可能なプランをご用意しております。
オフィスラウンジ、スカイテラス、廊下、会議室等の共用スペースにはエッセンスとしてウッドやグリーン、そしてアートやグラフィックを配置し、クリエイティブでありながらフレンドリーで温かみのあるデザインになっており、形にとらわれないワークライフが実現します。
中目黒界隈のクリエイターをはじめ、様々な人種や業種が集まるコミュニケーションプレイスとして、賑わいをみせています。
2021年のニューアルオープンに伴い1F SHOP区画も新たに加わり、 2F~5Fには200㎡以上の区画から、15~47㎡までのスモールオフィスを幅広く取り揃え、独創的かつクリエイティブなオフィス作りが実現可能となっております。
DETAIL
- TYPE
- OFFICE・SHOP
- NUMBER
- 全30区画
- SIZE
- 15.90㎡〜300.26㎡
- WARD
- 目黒区
- STATION
- 「池尻大橋駅」 徒歩8分
- SCALE
- 鉄筋コンクリート造 地上5階建
- COMPLETION
- 1969年1月
※2005年5月耐震補強工事実施済み - RENOVATION
- 1期2014年11月
2期2021年8月
PUBLIC & SERVICE
CREATORS
Dunkwell / ダンクウェル アーティスト
本来の意味は、「ペンキをたくさんつける」こと。
東京生まれ。自由なアイデアと独創的なクリエイティブであらゆるBORDERに挑み続けるアーティスト。
2018年、日本語のカタカナ文字をタギングしたテキストペインティングをニューヨーク・ブルックリンにて発表。デジタルサイネージや看板、広告の中で多用されるカタカナ文字をストリート表現へ転用し注目を浴びる。現在はiPadを用いたデジタルの描画を積極的に取り入れ、その表現力は常に進化し続けている。



ACCESS
- ADDRESS
- 〒153-0042 東京都目黒区青葉台3-18-3
- ACCESS
- 東急田園都市線「池尻大橋駅」 徒歩8分
東急東横線「中目黒駅」 徒歩13分
SPECIAL FEATURE
特集ページ
RECOMMEND
その他のオススメ物件
<ABOUT>
The Communication Place “THE WORKS” produced by TRANSIT GROUP.Renovated 45 year old building which used to be warehouse and office. Making use of ambience of the warehouse, this vintage building resembles a renovated hotel in N.Y. Restaurant and coffee bar on the 1st floor, ofe-floor office on the 2nd floor, and small offices are on the 3rd floor to the 5th floor. To support flexible workers, we provided communal spaces (Sky Terrace, Common Lounge, Parking Lot, Shower Booth). We aim to be a global facility where diverse backgrounds and industries gather.
<OUTLINE>
NAME: THE WORKS / ADDRESS: 3-18-3 Aobadai, Meguro-ku, Tokyo / ACCESS: “Ikejiriohashi Station” (Tokyu Denentoshi Line) 8 min walk, “Nakameguro Station” (Tokyu Toyoko Line) 13 min walk / PURPOSE: Office, Shop / COMPLETION YEAR: January 1969 (aseismic reinforcing work done in April 2004) / RENOVATION YEAR: 1st:November 2014, 2nd:August 2021 / OWNER: IMON Enterprise Co., Ltd. / CREDITOR: REALGATE INC.
<PLANS>
1F: one floor shop(297.71㎡) / 2F: one floor office(239.52㎡) / 3F: Rent a full floor (300.26㎡) / 4F: 15 rooms (15.90㎡-46.67㎡) / 5F: 14 rooms (15.90㎡-46.51㎡)
We prepared “Room Share Plan” which is for sharing a time, place and business with your friend. 3 corporations could share a small office. It costs 10,000 yen (without tax) by 1 Trade name. 1 Corporation for additional fee and 50,000 yen (without tax) for an application fee. *The investigation exists for this plan.
<CONTACT>
More information or questions, please contact us by email:
[email protected]
